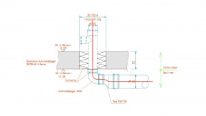
Detail Aufstandsbogen

Consent Management Platform von Real Cookie Banner